Beschrijving
Wil jij wonen in compleet gerenoveerd appartement (55m²) , met een hoogwaardige afwerking en slim ingedeeld met open keuken en aangrenzende woonkamer, riante slaapkamer met badkameren een groot zonnig balkon met vrij uitzicht over Diemen, dan is dit jouw ideale woning en een kans die je niet mag laten liggen! . Het appartement ligt in het hart van Diemen, naast de Watergraafsmeer. Het appartement is gelegen op EIGEN GROND.
Het appartement bevindt zich in een rustige straat in een van de populairste wijken van Diemen. In de directe omgeving vind je onder andere het winkelgebied Diemerplein, met alle winkels en diverse hippe eet- en drinkgelegenheden. De Diemerpolder ligt op een steenworp afstand en ook het treinstation Diemen Centrum is eenvoudig te bereiken.
INDELING:
Via de gezamenlijke entree neem je de lift of trap naar de vierde verdieping, waar je het appartement betreedt.
Bij binnenkomst kom je in een kleine hal, ideaal om je jas en schoenen op te bergen in de op maatgemaakte kast.
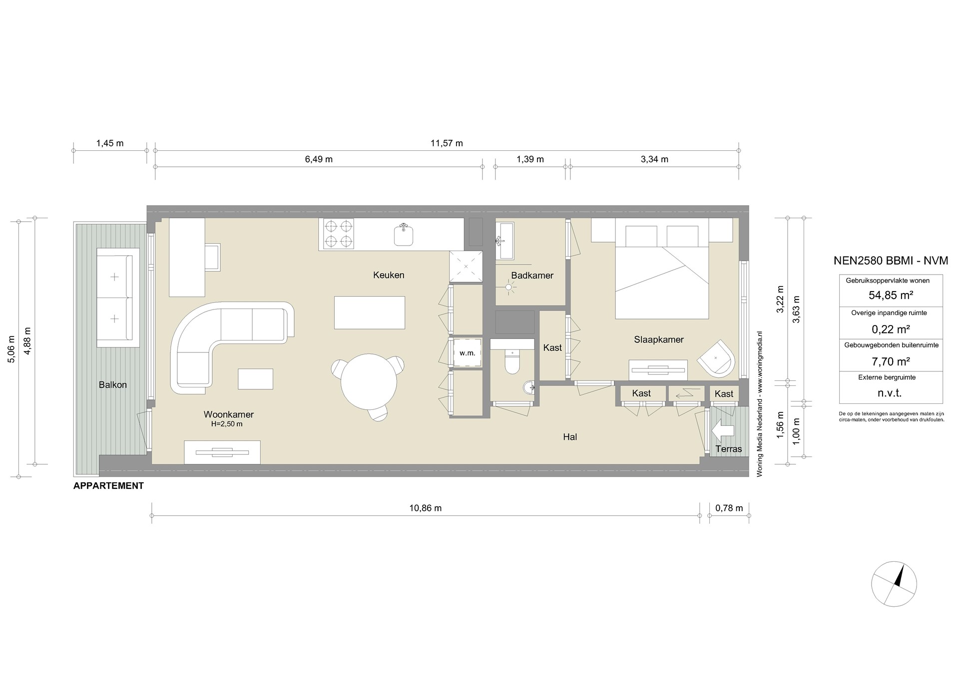
De slaapkamer aan de voorzijde van het appartement gelegen, voorzien van prachtige inbouwkasten.
Vanuit de slaapkamer betreed je de badkamer met inloopdouche en een mooi strak vormgegeven wastafelmeubel.
De luxueuze open keuken is uitgerust met een elektrisch fornuis en kookeiland en is van alle gemakken voorzien. In de lange kastenwand met veel opbergmogelijkheden met een ingebouwde wasmachine is eveneens een kaptafel ingebouwd.
Ruime woonkamer met fantastisch vrij uitzicht en een balkon over de complete breedte van het appartement.
Het volledige appartement is voorzien van een prachtige houtenvloer.
In de kelder bevindt zich een ruime, inpandige berging met meer dan voldoende opbergruimte.
LOCATIE:
De woning is gunstig gelegen ten opzichte van supermarkten, gezellige restaurants en winkels aan het Diemerplein. Je vindt er een levendige sfeer met een breed aanbod aan horeca, zoals Ristorante Ciao Sorella, Otra Mas Brasserie en Momi. Het Diemerpark ligt op loopafstand – ideaal voor ontspanning en recreatie.
BEREIKBAARHEID & PARKEREN
Het appartement is uitstekend bereikbaar met zowel het openbaar vervoer als de auto. Trams(19), bussen zijn op korte loopafstand te vinden en station (Diemer Centrum)
Met de auto is de woning goed bereikbaar via de ringweg A10 (afrit S113), tevens ben je in mum van tijd bij de A1 en A4.
Parkeren is mogelijk tegen betaling en via een aan te vragen parkeervergunning bij de gemeente Diemen.
Een parkeervergunning voor bewoners kost EUR 96 per 24 maanden.
Op dit moment is er geen wachttijd voor een parkeervergunning.
VERENIGING VAN EIGENAARS (VvE)
Naam VvE: ‘Vereniging van Eigenaars Flatgebouw Martin Luther Kinglaan 2 t/m 630 te Diemen’.
De VvE bestaat uit 310 leden en het appartement heeft een 59/25128 aandeel in de gemeenschap. Het betreft een actieve, gezonde VvE met een MeerJarenOnderhoudsplan (MJOP), welke professioneel beheerd wordt. De maandelijkse servicekosten bedragen EUR 194,73 exclusief EUR 50 stookkosten.
EIGENDOMSSITUATIE:
De woning is gelegen op eigen grond.
BIJZONDERHEDEN:
- Vol eigendom – geen erfpacht!
- Gebruiksoppervlakte: 54,85 m² (balkon 7,70 m² ) (NEN2580 meetrapport beschikbaar)
- Energielabel C.
- Appartement compleet gerenoveerd.
- Vrij uitzicht
- Ruime berging in de kelder van het complex
- Actieve VvE, MJOP aanwezig.
- Notaris keuze koper, mits koopakte conform Model Ring Amsterdam
- Onder voorbehoud gunning verkoper.
- Oplevering in overleg.
Benieuwd of jij en dit appartement een match zijn? Maak dan snel een afspraak met onze makelaar Mitchell Westerduin.
Deze informatie is door ons met de nodige zorgvuldigheid samengesteld. Onzerzijds wordt echter geen enkele aansprakelijkheid aanvaard voor enige onvolledigheid, onjuistheid of anderszins, dan wel de gevolgen daarvan. Alle opgegeven maten en oppervlakten zijn indicatief. Koper heeft zijn eigen onderzoeksplicht naar alle zaken die voor hem of haar van belang zijn. Met betrekking tot deze woning is de makelaar adviseur van verkoper. Wij adviseren je een deskundige (Vastgoed Ned.)-makelaar in te schakelen die je begeleidt bij het aankoopproces. Indien je specifieke wensen hebt omtrent de woning, adviseren wij je deze tijdig kenbaar te maken aan jouw aankopend makelaar en hiernaar zelfstandig onderzoek te (laten) doen. Indien je geen deskundige vertegenwoordiger inschakelt, acht je jezelf volgens de wet deskundige genoeg om alle zaken die van belang zijn te kunnen overzien. Van toepassing zijn de (Vastgoed Ned.)-voorwaarden.