Beschrijving

Op een uitzonderlijk rustige plek midden in de bruisende binnenstad ligt dit volledig gerenoveerde en instapklare appartement van 55 m² met terras op het zuidoosten. Gelegen op EIGEN GROND, op de tweede verdieping van een prachtig gemeentelijk monument, combineert deze woning comfort met karakter.

Wist je dat je ook zelf een bezichtiging kunt plannen? Klik op de oranje button en ontvang direct een link om een afspraak in te plannen.

Indeling:
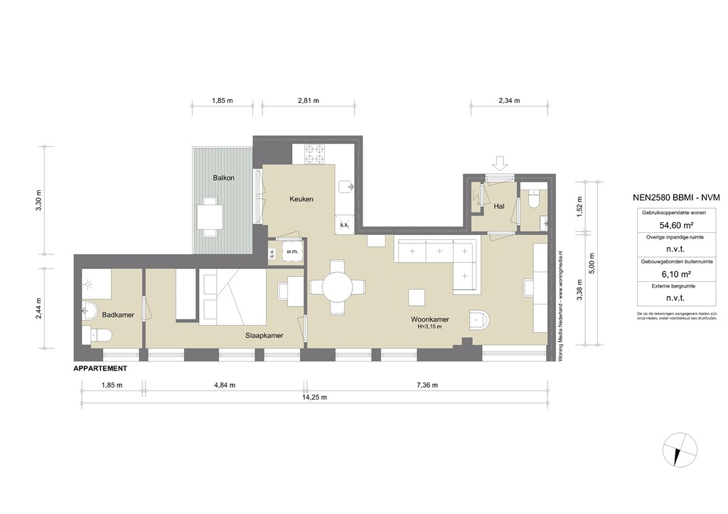
Via de verzorgde, ruime entree bereik je de tweede verdieping. Binnenkomst in de hal met separaat toilet, waarna je de ruime woonkamer betreedt. De hoge plafonds en brede raampartijen zorgen voor een overvloed aan natuurlijk licht. De hoogwaardige pvc-vloer loopt door het hele appartement en geeft een moderne uitstraling.
Aan de achterzijde bevindt zich de open keuken (2017) met luxe inbouwapparatuur: combi-oven, koel-/vriescombinatie, 5-pits gasfornuis, vaatwasser en Quooker. Een praktische berging met wasmachine-/drogeraansluiting en CV-ketel grenst aan de keuken. Via de keuken bereik je het zonnige terras op het zuidoosten – een heerlijke plek om de dag te starten.
De slaapkamer ligt achter de woonkamer en is voorzien van dezelfde hoge ramen. Achter de walk-in closet vind je de nette badkamer (2017) met inloopdouche, wastafel en tweede toilet.

Eigendomsinformatie:
Het appartement is gelegen op eigen grond, geen erfpacht. 

Vereniging van eigenaren (VvE):
De gezonde, actieve en professioneel beheerde VVE bestaat uit 7 leden, het aandeel van het appartement is 54/468 en de maandelijkse servicekosten bedragen € 158,47. Voldoende reserves, MJOP, opstalverzekering, notulen zijn aanwezig.

Omgeving:
Het appartement bevindt zich in een uitzonderlijk rustige straat, midden in de historische binnenstad van Amsterdam, tussen de Spuistraat en de Nieuwezijds Voorburgwal. Op loopafstand vind je de Dam, het Spuiplein, het Centraal Station, de Jordaan en de 9 Straatjes. In de directe omgeving vind je theaters, galeries, unieke boetieks en uiteraard de Kalverstraat. Daarnaast barst het hier van de sfeervolle restaurants, authentieke Amsterdamse cafés, stijlvolle koffiebars en gezellige terrassen.
De bereikbaarheid is uitstekend: het Centraal Station ligt op slechts vijf minuten lopen, en Schiphol is binnen een half uur te bereiken. .

Bijzonderheden:
•	Zeer licht 2-kamerappartement van 55 m²
•	Appartementencomplex volledig gerenoveerd in 2017
•	Energielabel B
•	Gelegen op Eigen grond – géén erfpacht
•	Heerlijk terras op het zuidoosten
•	Hoog plafond en grote ramen over de volledige breedte
•	Actieve en gezonde VvE (7 leden) 
•	Servicekosten: €160,90 p/m
•	Goed onderhouden: buitenzijde recent geschilderd (begin 2025)
•	Meubilair is bij de koop inbegrepen
•	Gemeentelijk monument
•	Oplevering in overleg, kan snel
•	Niet-zelfbewoningsclausule van toepassing
•	Notaris keuze koper, gunning voorbehouden aan verkoper

Deze informatie is door ons met de nodige zorgvuldigheid samengesteld. Onzerzijds wordt echter geen enkele aansprakelijkheid aanvaard voor enige onvolledigheid, onjuistheid of anderszins, dan wel de gevolgen daarvan. Alle opgegeven maten en oppervlakten zijn indicatief. Koper heeft zijn eigen onderzoeksplicht naar alle zaken die voor hem of haar van belang zijn. Met betrekking tot deze woning is de makelaar adviseur van verkoper. Wij adviseren je een deskundige (Vastgoed-Ned.)makelaar in te schakelen die je begeleidt bij het aankoopproces. Indien je specifieke wensen hebt omtrent de woning, adviseren wij je deze tijdig kenbaar te maken aan jouw aankopend makelaar en hiernaar zelfstandig onderzoek te (laten) doen. Indien je geen deskundige vertegenwoordiger inschakelt, acht je jezelf volgens de wet deskundige genoeg om alle zaken die van belang zijn te kunnen overzien. Van toepassing zijn de Vastgoed-Ned. voorwaarden.

Kenmerken