Beschrijving
        
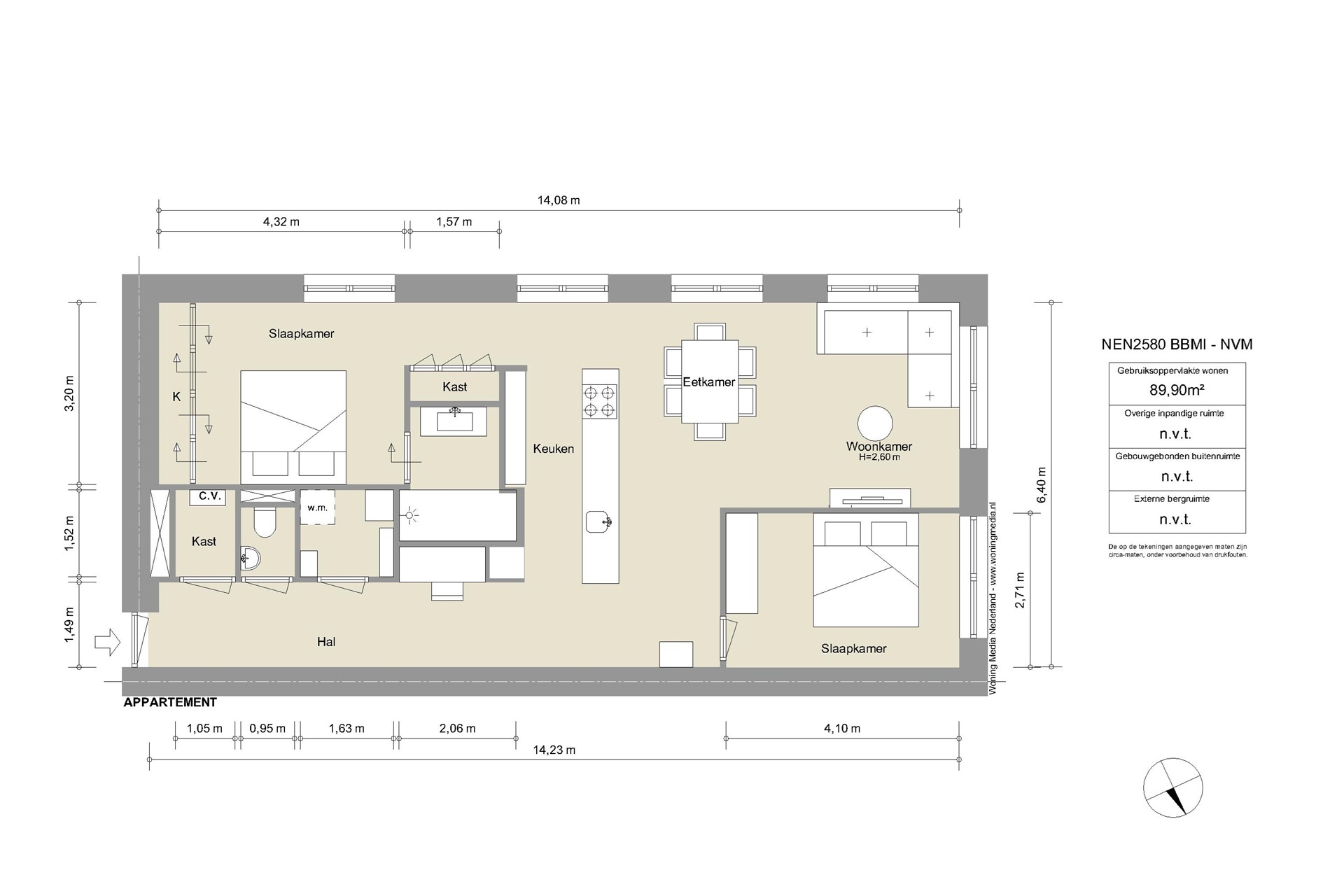
            Heerlijk licht en ruim hoekappartement van 90 m² op de zevende verdieping, met prachtig uitzicht over het water van het Westerdok.  
Dankzij vijf grote raampartijen over de gehele hoekzijde baadt het appartement in natuurlijk daglicht – vanaf circa 13:00 uur tot zonsondergang.
De indeling is ruim en praktisch. Je ziet een zeer ruime woonkamer met open-keuken en een groot kookeiland, een aparte slaapkamer met en-suite badkamer, een separate wc, een inpandige berging en een handige werkplek in de hal. In het rechterdeel van de woonkamer is eenvoudig een tweede slaapkamer te realiseren.
Het gebouw beschikt over een lift en biedt naast een privé berging in de onderbouw ook een optionele parkeerplek in de ondergelegen parkeergarage. 
Het appartementencomplex is gebouwd in 2004 en erg modern. Binnen ligt een fraaie, karakteristieke eikenhouten parketvloer en er is  vloerverwarming aanwezig welke veel comfort biedt..
INDELING:
Via de moderne afgesloten entree bereik je de gezamenlijke binnenplaats. Met de lift of via het trappenhuis kom je op de zevende verdieping.
Bij binnenkomst valt direct de lange hal op, met aan de linkerzijde een separate wc, een praktische berging met aansluiting voor wasmachine en droger, en een ingebouwde werkplek.
De woonkamer is opvallend licht en ruim dankzij de hoekligging en de grote ramen. De open keuken is uitgerust met moderne inbouwapparatuur, waaronder een AEG-vaatwasser, een Liebherr-koelkast met vriezer, een Bosch keramische kookplaat (vier pits) en een oven.
De slaapkamer is eveneens ruim en voorzien van een moderne en-suite badkamer, die vier jaar geleden volledig is vernieuwd.
In de ondergelegen parkeergarage is een privé-parkeerplaats beschikbaar, optioneel te koop aangeboden.
OMGEVING:
Gelegen op het Westerdokseiland in de geliefde Haarlemmerbuurt, tussen het IJ en de bruisende Jordaan. Via de fietsbrug wandel je zo de Jordaan in met tal van voorzieningen om de hoek.
In de directe omgeving zijn vele restaurants, boetieks, delicatessenzaken en supermarkten te vinden. Het nabijgelegen Westerpark met de iconische Westergasfabriek biedt volop mogelijkheden voor recreatie, sport en ontspanning.
De bereikbaarheid is uitstekend: het Centraal Station ligt op loopafstand en biedt toegang tot trein, tram, metro en bus. Ook met de auto is het appartement goed bereikbaar; de ring A10 bevindt zich op slechts enkele minuten.
EIGENDOMSSITUATIE:
De erfpacht is voortdurend het tijdvlak loopt tot November 2054. De aanvraag voor omzetting naar eeuwigdurende erfpacht is reeds ingediend bij de gemeente Amsterdam.
VvE (Vereniging van Eigenaren):
Professioneel beheerd door Stedeplan. VvE bestaat uit 159 appartementsrechten. Maandelijkse VvEbijdrage: € 320,- per maand, waarvan €98,- voorschot stookkosten en 58,- voor VvE Parkeren.
BIJZONDERHEDEN:
- Lift aanwezig.
- Tweede slaapkamer eenvoudig te realiseren.
- Prachtige eikenhouten vloer.
- Volledig geïsoleerd en voorzien van mechanische ventilatie.
- Volledig gasloos appartement.
- Volledig voorzien van dubbel glas.
- Mogelijkheid tot overname van (delen van) het interieur.
- Optioneel te koop aangeboden: privéparkeerplaats met EV-oplaadstation, voor auto-, scooter- en/of bakfietsparkeerplaats in ondergrondse garage.
- VvE-bijdrage: € 320,- per maand (waarvan 98,- voorschot stookkosten + extra bijdrage VvE 58,- parkeerplaats)
- Erfpacht afgekocht t/m november 2054, aanvraag eeuwigdurend tijdvak is gedaan en in behandeling bij de Gemeente.
- Keuze notaris aan koper. (mits binnen de ring A10)
- Gunning voorbehouden aan verkoper.
- Levering in overleg.
Benieuwd of jij en dit appartement een match zijn?
Maak snel een afspraak met onze makelaar.
Deze informatie is door ons met de nodige zorgvuldigheid samengesteld. Onzerzijds wordt echter geen enkele aansprakelijkheid aanvaard voor enige onvolledigheid, onjuistheid of anderszins, dan wel de gevolgen daarvan. Alle opgegeven maten en oppervlakten zijn indicatief. Koper heeft zijn eigen onderzoeksplicht naar alle zaken die voor hem of haar van belang zijn. Met betrekking tot deze woning is de makelaar adviseur van verkoper. Wij adviseren je een deskundige (Vastgoed Ned.)-makelaar in te schakelen die je begeleidt bij het aankoopproces. Indien je specifieke wensen hebt omtrent de woning, adviseren wij je deze tijdig kenbaar te maken aan jouw aankopend makelaar en hiernaar zelfstandig onderzoek te (laten) doen. Indien je geen deskundige vertegenwoordiger inschakelt, acht je jezelf volgens de wet deskundige genoeg om alle zaken die van belang zijn te kunnen overzien. Van toepassing zijn de Vastgoed Ned.-voorwaarden.