Beschrijving

Wagenaarstraat 27 - licht en goed afgewerkt 2-kamer appartement en opbouw mogelijkheden in de populaire Dapperbuurt! 

Wist je dat je ook zelf een bezichtiging kunt plannen? Klik op de oranje button en ontvang direct een link om een afspraak in te plannen.


Aan de Wagenaarstraat in Amsterdam mogen wij dit lichte en goed ingedeelde 2-kamer appartement van ca. 51 m² aanbieden. De woning is gelegen op de bovenste verdieping van een verzorgd complex. 
De woning heeft een lichte woonkamer met een ruime slaapkamer en een verzorgde badkamer. 


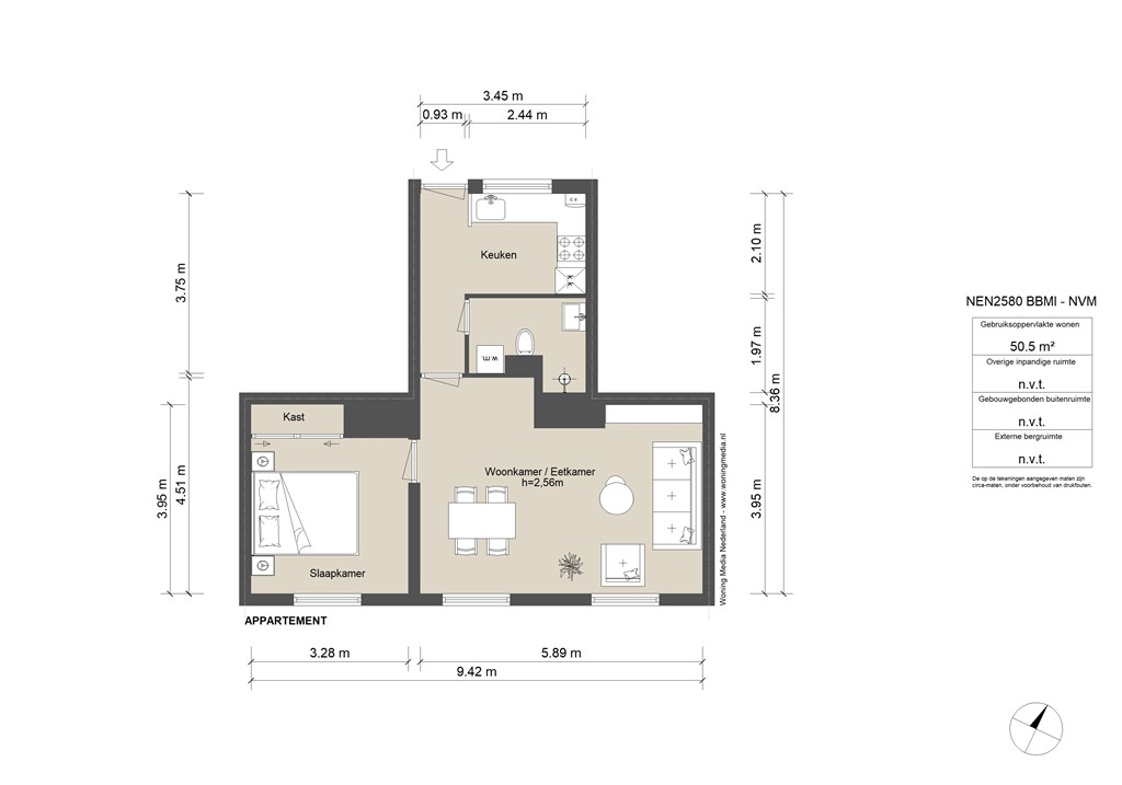
Indeling:
Bij binnenkomst heb je aan de linkerzijde direct de keuken met uitzicht op de binnentuin. Naast de keuken bevindt zich de badkamer met inloopdouche, wastafel en wasmachine-droger opstelling. 

De ruime woonkamer en slaapkamer zijn gelegen op het zuiden, door de grote raampartijen is de woonkamer zeer licht. Dankzij de ligging op de bovenste verdieping geniet u van veel privacy en een vrij uitzicht. Daarnaast is er eventueel een mogelijkheid voor een opbouw waarmee u de grote van de woning flink kunt vergroten. (Tekeningen zijn reeds gemaakt en ter inzage) 

De locatie is ideaal: om de hoek vindt u de levendige Dappermarkt, diverse winkels, cafés en restaurants, en binnen enkele minuten lopen staat u in het Oosterpark. De bereikbaarheid is uitstekend, met het openbaar vervoer, fiets of auto bent u zo in het centrum of op de ring A10. 

Eigendomssituatie:

Het appartement is gelegen op Gemeentelijke erfpachtgrond en is afgekocht tot 15 maart 2036. Voor het eeuwigdurend tijdvak is de jaarlijks canon vastgesteld op €546,33 per jaar plus jaarlijkse indexatie. 

Vereniging van Eigenaren (VvE):

Deze gezonde VvE wordt professioneel beheerd en bestaat uit 145 leden. Het aandeel van het appartement bedraagt 63/6836 en de maandelijkse servicekosten bedragen EUR 134,72. Er is voldoende reserve aanwezig, evenals een opstalverzekering en notulen van de vergaderingen.

OMGEVING: 
Het appartement is gelegen op een absolute top plek in Amsterdam-Oost op korte afstand van de gezellig Dappermarkt, de Amstel / Weesperzijde, het Tropenmuseum, vele gezellige restaurants en cafés, de Javastraat, het prachtige Oosterpark, dierentuin Artis en Amsterdam centrum op nog geen 10 minuten fietsen. Maar ook het openbaar vervoer is goed te noemen met het Muiderpoortstation op nog geen 5 minuten lopen en tram 7 en 14 stoppen om de hoek. Ook uitvalswegen naar ring A10/A1/A2 zijn goed bereikbaar vanaf dit heerlijke appartement. Kortom een ideaal appartement voor starters of als pied-à-terre op een van de leukste plekken van Oost!


BIJZONDERHEDEN: 

- Woonoppervlakte: ca. 51 m²;
- Gelegen op de bovenste verdieping, mogelijkheid tot een opbouw;
- energielabel C;
- terras aan galerijzijde;
- Berging van ca. 3,3 m²;
- Centrale ligging nabij Dappermarkt en Oosterpark ;
- actieve VvE welke professioneel wordt beheerd door Ymere VvE Beheer; 
- VvE bijdrage van € 134,72 per maand;
- erfpacht afgekocht t/m 15 maart 2036;
- overstap erfpacht eeuwigdurende canon onder gunstige voorwaarden reeds afgerond;
- Projectnotaris van toepassing
- Oplevering in overleg.

Deze informatie is door ons met de nodige zorgvuldigheid samengesteld. Onzerzijds wordt echter geen enkele aansprakelijkheid aanvaard voor enige onvolledigheid, onjuistheid of anderszins, dan wel de gevolgen daarvan. Alle opgegeven maten en oppervlakten zijn indicatief. Koper heeft zijn eigen onderzoeksplicht naar alle zaken die voor hem of haar van belang zijn. Met betrekking tot deze woning is de makelaar adviseur van verkoper. Wij adviseren je een deskundige (Vastgoed-Ned.)makelaar in te schakelen die je begeleidt bij het aankoopproces. Indien je specifieke wensen hebt omtrent de woning, adviseren wij je deze tijdig kenbaar te maken aan jouw aankopend makelaar en hiernaar zelfstandig onderzoek te (laten) doen. Indien je geen deskundige vertegenwoordiger inschakelt, acht je jezelf volgens de wet deskundige genoeg om alle zaken die van belang zijn te kunnen overzien. Van toepassing zijn de Vastgoed-Ned. voorwaarden.

Kenmerken