Beschrijving
SFEERVOL SLIM INGERICHT HIGH-END 3-KAMER APPARTEMENT MET TWEE SLAAPKAMERS (67m²), RIANTE BADKAMER MET LIGBAD EN EEN GROOT DAKTERRAS (dak en (38 m²) MET EEN ENERGIELABEL A, IN DE GEZELLIGE CORNELIS TROOSTBUURT. Dit charmante bovenhuis van een goed onderhouden gebouw is direct te betrekken. En is gelegen op EIGEN GROND!
Het appartement ligt te midden van drie populaire buurten, de Oude en Nieuwe Pijp en het Museumkwartier. In volledige rust genieten aan de kade, terwijl om de hoek van de straat je opzoek kan gaan naar ontspanning en vertier.
Kortom een parel om in te wonen in het hart van het meest bruisende stadsdeel van Amsterdam, de Pijp.
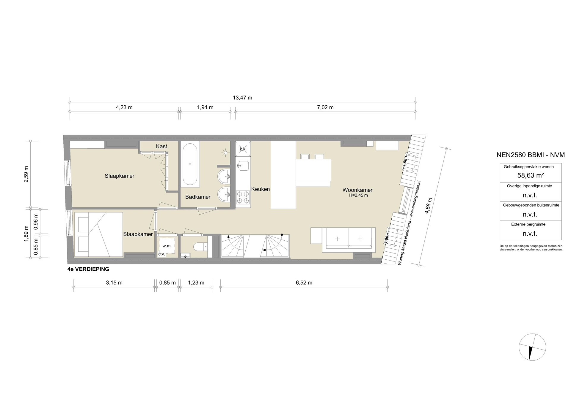
INDELING:
Via de gezamenlijke entree, welke compleet vernieuwd is, neem je de trap naar de derde verdieping, vanuit hier betreed je de woning.
Bij binnenkomst in het appartement tref je de garderobe en de trap naar boven naar de hal.
In het midden van het huis is de grote open keuken met hoogwaardige kwaliteit inbouwapparatuur gesitueerd, met een groot aanrecht, over bijna de gehele breedte van het huis. Eveneens is er een wijn-klimaatkoelkast ingebouwd aan de andere zijde van het aanrecht, waardoor deze zijde als bar te gebruiken is. De eettafel is mooi verzonken in het aanrecht en is perfect gesitueerd in het midden van de ruimte.
Aan de voorzijde is de relaxte living met een mooi uitzicht over het water van de Boerenwetering.
Separaat toilet met fontein, washok met CV-machine en ruimte voor extra opslag.
Badkamer met ligbad en grote inloopdouche, dubbele wastafel met mengkraan.
Aan de achterzijde van het appartement zijn de twee slaapkamers, een slaapkamer is uitgerust met een perfecte inbouwkastenwand en een bureau.
Via de trap bereik je het dakhuis met opslagmogelijkheden of ruimte voor het plaatsen van een bureau. Het riante dakterras is aangelegd over de volledige breedte en lengte van het appartement, het complete dak is voorzien van een nieuwe bitumen dakbedekking, de terrasvloer is eveneens recent vernieuwd, ook is er water en elektra aanwezig.
LOCATIE:
De woning is gunstig gelegen ten opzichte van supermarkten, leuke restaurants en winkels in de Cornelis Troostbuurt en de Pijp. Gezellige sfeer en breed aanbod aan restaurants, cafés en winkels, zoals bij Ceintuur Theater, Brouwerij Troost, Sjefietshe, Kid en The Livingroom. Het appartement ligt tussen het Beatrixpark en het Amstelpark op een steenworp afstand van het Vondelpark, ideaal voor ontspanning en recreatie. Supermarkten en andere voorzieningen zijn op loopafstand, onder andere aan de Ferdinand Bolstraat en de Ceintuurbaan.
BEREIKBAARHEID & PARKEREN:
Het appartement is uitstekend bereikbaar met zowel het openbaar vervoer als de auto. Trams, en bussen zijn op korte loopafstand en stations Amsterdam Zuid, RAI en Amstel zijn om de hoek. De Noord-Zuidlijn metro heeft een ingang op loopafstand. Het appartement ligt op steenworp afstand van de Noord/Zuidlijn, met een snelle ontsluiting naar Amsterdam Centraal. Met de auto is de woning goed bereikbaar via de ringweg A10.
Betaald parkeren middels een aan te vragen parkeervergunning bij de gemeente. Dit adres valt onder vergunningsgebied: Zuid 3.2 De Pijp Zuid. Met een parkeervergunning voor Zuid 3.2, mag je ook parkeren in Zuid-3 en Zuid-4.
Een parkeervergunning voor bewoners kost EUR 192,81 per 6 maanden. Momenteel is er een wachttijd voor een parkeervergunning van 5 maanden.
VERENIGING VAN EIGENAREN (VvE):
Betreft de “Vereniging van eigenaars gebouw Ruysdaelkade 193” te Amsterdam. De VvE bestaat uit 5 leden, 1/5e aandeel in de gemeenschap, is een gezonde actieve VvE met een Meer Jaren Onderhouds Planning. De servicekosten bedragen EUR 134,82 per maand.
EIGENDOMSSITUATIE:
De woning is gelegen op eigen grond!!
BIJZONDERHEDEN:
- Oppervlakte: 67 m² (+ 38 m² dakterras) (NEN 2580 meetrapport aanwezig)
- Fantastisch uitzicht van het dakterras over het water.
- Mogelijkheid tot het aanleggen van een boot.
- Energielabel A!!
- High-end afwerking.
- Volledig dubbelglas en top geïsoleerd.
- Actieve en gezonde VVE.
- Notaris: keuze koper, mits koopakte conform Model Ring bij notaris in Groot Amsterdam.
- Voorbehoud gunning verkoper.
- Oplevering in overleg.
Deze informatie is door ons met de nodige zorgvuldigheid samengesteld. Onzerzijds wordt echter geen enkele aansprakelijkheid aanvaard voor enige onvolledigheid, onjuistheid of anderszins, dan wel de gevolgen daarvan. Alle opgegeven maten en oppervlakten zijn indicatief. Koper heeft zijn eigen onderzoeksplicht naar alle zaken die voor hem of haar van belang zijn. Met betrekking tot deze woning is de makelaar adviseur van verkoper. Wij adviseren je een deskundige (Vastgoed-Ned.)makelaar in te schakelen die je begeleidt bij het aankoopproces. Indien je specifieke wensen hebt omtrent de woning, adviseren wij je deze tijdig kenbaar te maken aan jouw aankopend makelaar en hiernaar zelfstandig onderzoek te (laten) doen. Indien je geen deskundige vertegenwoordiger inschakelt, acht je jezelf volgens de wet deskundige genoeg om alle zaken die van belang zijn te kunnen overzien. Van toepassing zijn de Vastgoed-Ned. voorwaarden.