Beschrijving
Fantastisch gelegen bel-etage appartement van maar liefst (257m²) met vijf slaapkamers en twee badkamers op een toplocatie aan het IJ en met een gigantisch dakterras en een riante tuin (65 en 35m2). Optioneel met autoparkeerplaats en een riante berging in de ondergelegen parkeerkelder.
Dit unieke familiehuis verdeeld over twee verdiepingen, met zicht op het (vaar)water in de nieuwe exclusieve buurt van de Houthavens. Dit prachtige en ruim opgezette en vooral slim ingerichte appartement is ideaal is voor gezinnen met (kleine) kinderen. Daar het zo breeds is opgezet, en verdeeld over twee verdiepingen is zelfs dubbele bewoning mogelijk.
Het nieuwbouwappartement bevindt zich in de Houthavens op Revaleiland en is gebouwd in 2020. De huidige eigenaren, zijn de eerste bewoners.
INDELING:
De gemeenschappelijke entree biedt toegang tot het trappenhuis met lift, de parkeergarage en de bergingen bevinden zich in de kelder van het complex.
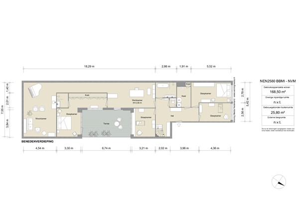
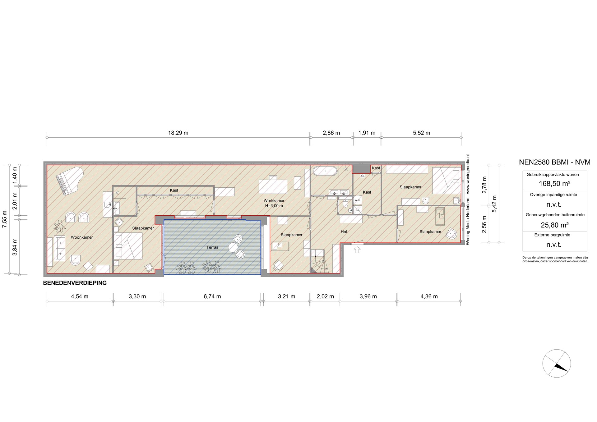
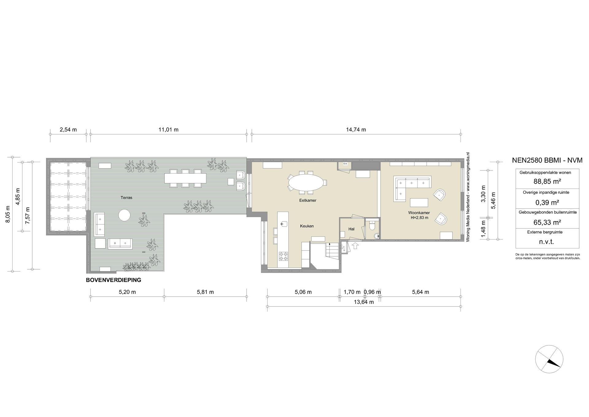
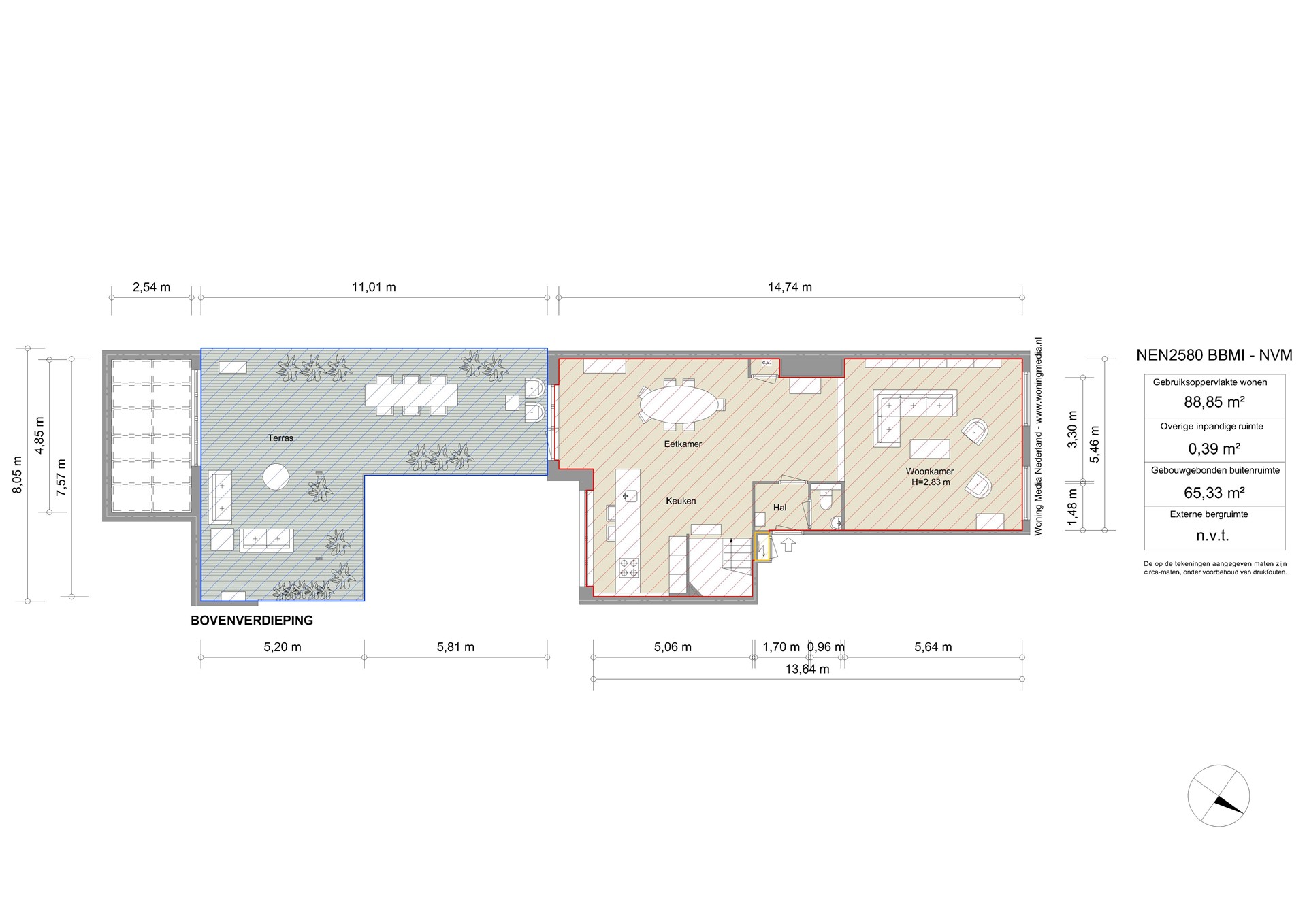
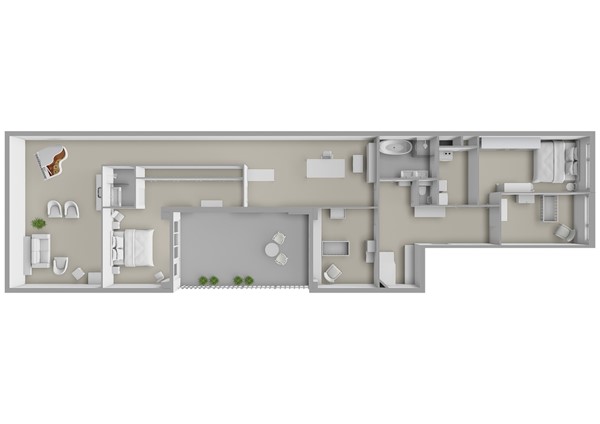
De entree van het appartement bevindt zich op de bel-etage verdieping. Bij binnenkomst kom je in de hal met garderobe, separaat toilet met fontein.
De royale woonkamer is aan de voorzijde van het appartement gesitueerd met zicht op het water. Deze ruimte wordt gekenmerkt door de extreem hoge plafonds, en een prachtige boekenkast over de complete lengte van de woonkamer.
In het midden van het huis is de grote open woonkeuken (Siematic) geplaatst, uitgerust met diverse inbouwapparatuur zoals een combi-oven, een vaatwasser, een inductiekookplaat met geïntegreerde afzuiginstallatie, een koel-vriescombinatie en een Quooker.
Aan deze ruimte is het dakterras verbonden van maar liefst 65m2, met een overkapping waar je heerlijk beschut het gehele jaar gebruik van kan maken.
Vanaf deze plek heb je zicht op de lagergelegen prive-tuin, alsmede op de achterkamer van het appartement.
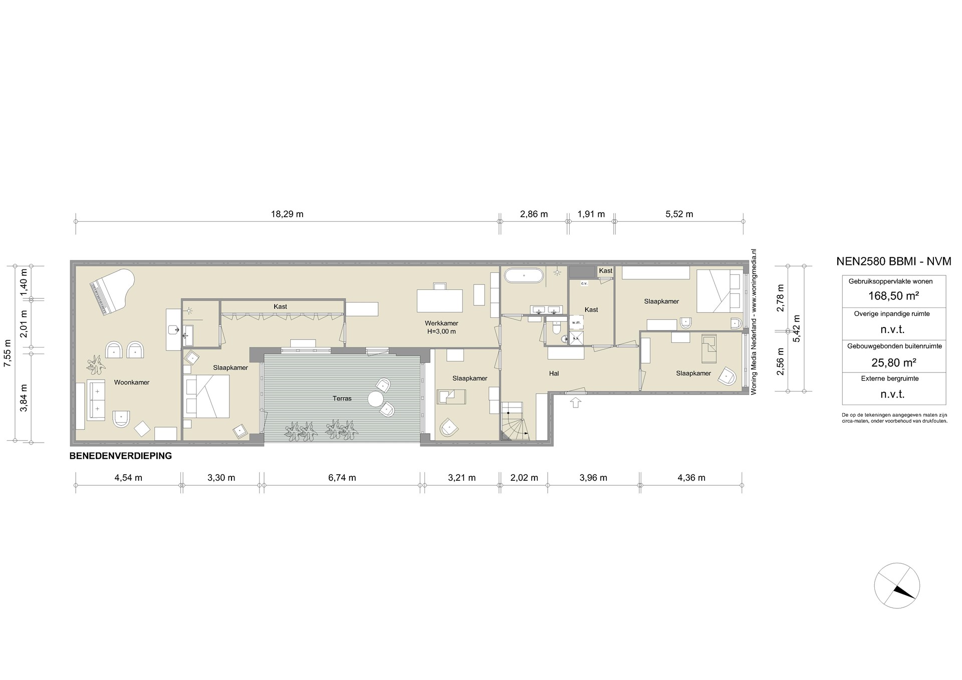
Middels de trap naast de keuken bereik je de riante slaapverdieping met maar liefst vijf slaapkamers, een werkkamer en twee badkamers.
Aan de straatzijde zijn twee slaapkamers gesitueerd, een slaapkamer heeft een lange vaste kastenwand met veel opbergmogelijkheden.
In het hart van deze etage is een zeer riante interne berging met ruimte voor de wasmachine en droger en eveneens genoeg ruimte voor om het nodige op te bergen.
Separaat toilet met fontein.
Badkamer met een ligbad, inloopdouche en een dubbele wastafel.
Aan de voorzijde van het huis is nog een andere slaapkamer met zicht op de tuin.
Via de riante werkkamer, kun je zowel de tuin bereiken alsmede de twee andere slaapkamers.
De masterbedroom heeft een eigen badkamer en directe toegang tot de tuin.
Een badkamer met inloopdouche en wastafelmeubel, ook in deze slaapkamer is er een prachtige en lange kastenwand geplaatst.
Via de werkkamer bereik je de laatste ruimte welke in gebruik genomen kan worden als slaapkamer of extra woonkamer. Deze ruimte is thans in gebruik als woonkamer en is voorzien met een kitchenette. Ook kan deze ruimte perfect gebruikt worden als atelier vanwege de prachtige lichtinval mede doordat de plafondhoogte ruim 7 meter hoog is!
Via de hal van de slaapverdieping, is er ook een toegangsdeur geplaatst, waardoor dubbele bewoning een mogelijkheid is.
Via het algemene trappenhuis, bereik de lagergelegen parkeergarage. Met een privé-parkeerplaats met oplaadmogelijkheden en ook is er een grote separate berging in de kelder van het complex.
Op het dak liggen zonnepanelen en het is het appartement volledig en hoogwaardig geïsoleerd en heeft het een energielabel A+++!
Door het gehele huis is er vloerverwarming en vloerkoeling in plaats van radiatoren.
LOCATIE:
De Houthavens is een nieuwe en luxe wijk met grachten, veel groen en zicht over het IJ en de NDSM in Amsterdam Noord. En in tegenstelling tot andere nieuwbouwprojecten, direct verbonden met het centrum en de oudere stad zoals de levendige Spaarndammerstraat, Prinseneiland, de Jordaan, de Haarlemmerstraat, Haarlemmerdijk en de Noordermarkt. Het Westerpark ligt letterlijk en figuurlijk om de hoek. Er zijn internationaal georiënteerde scholen, leuke winkels, goede restaurants en bars. Ook zijn er diverse fitnessscholen, is er een Albert Heijn en een Jumbo supermarkt. Op loopafstand van het appartement, is ook de steiger aan het IJ waar zomer en winter wordt gezwommen.
BEREIKBAARHEID & PARKEREN:
Het appartement ligt op een steenworp afstand het Centraal Station en de gezellige Jordaan. De Houthavens is autoluw. Maar met de auto zijn de A1, A9 en A10 snel bereikbaar.
Ook met het openbaar vervoer is dit fijne appartement met uitzicht over het IJ uitstekend te bereiken. Parkeren kan gemakkelijk in de ondergelegen parkeergarage. Maar middels een bewoners app is het ook mogelijk om tijdelijk op een andere plek te parkeren.
Ook blijft het mogelijk natuurlijk om de openbare weg te parkeren, echter krijg je als bewoner geen parkeervergunning.
Vanaf het appartement ben je in slechts enkele minuten bij het Centraal Station. Ook ben je heel snel op de ring met de auto. De verbinding met bus en tram is eveneens makkelijk.
In de directe omgeving bevinden zich tal van bekende restaurants en cafés, zoals ‘restaurant ‘Lars’, ‘De Bak, hotel The ‘July’ met een heerlijk terras aan het IJ, een nieuwe vesting van Brasserie George, café het Heilig Leven en Restaurant BAK. Ook zijn er veel kleine restaurantjes in de Spaarndammerstraat.
Op zaterdag doe je de boodschappen op de (biologische) markt op de Noordermarkt of de Lindengracht.
Voor ontspanning kun je terecht in het Westerpark of neem je de pont naar de bruisende NDSM-werf in Amsterdam - noord. De bereikbaarheid per pont is uitstekend. En ook in noord stikt het van de leuke restaurants zoals bijvoorbeeld Helling 7.
VERENIGING VAN EIGENAREN (VvE):
Betreft de “Vereniging van eigenaars Nieuw Amsterdams Wonen” te Amsterdam. De VvE bestaat uit 93 leden, 323/15194e aandeel in de gemeenschap, is een gezonde actieve VvE met een Meer Jaren Onderhouds Planning en wordt professioneel beheerd door Newomij VvE Beheer. De servicekosten bedragen EUR 519,45 per maand.
EIGENDOMSSITUATIE:
Het appartement is gelegen op eeuwigdurende gemeentelijke erfpachtgrond. Het huidige tijdvak loopt tot 30-06-2067. De erfpacht voor het appartement is in 2025 EUR 9893,65.
De erfpacht voor de parkeerplaats is EUR 96,36 in 2025.
Na 2067 is er de overstap naar eeuwigdurende erfpacht onder de gunstigste voorwaarden aangevraagd.
BIJZONDERHEDEN:
- Oppervlakte: 257,35m² met 91,13m² buitenruimte (NEN 2580 meetrapport aanwezig)
- Zeer kindvriendelijke buurt.
- Twee buitenruimtes; dakterras en riante tuin.
- High-end verbouwd.
- Energielabel A.
- Zonnepanelen op het dak van het complex.
- Volledig dubbelglas en top geïsoleerd.
- Stadsverwarming, vloerverwarming en vloerkoeling i.p.v. radiatoren door het gehele appartement.
- Zonnepanelen op het dak van het complex.
- Veel (op)bergruimte.
- Optioneel te koop aangeboden: privéparkeerplaats met EV-oplaadstation, voor auto-, scooter- en/of bakfietsparkeerplaats in ondergrondse garage.
- Overstap naar eeuwigdurende erfpacht onder gunstige voorwaarden is tijdig aangevraagd (in afwachting analyse gemeente).
- Actieve en professionele VvE, beheerd door Newomij VvE Beheer.
- Meerjaren Onderhoudsplan (MJOP) aanwezig.
- Notaris: naar keuze koper, mits koopakte conform Model Ring bij notaris in Groot Amsterdam.
- Voorbehoud gunning verkoper.
- Oplevering in overleg.
Benieuwd of jij en dit appartement een match zijn?
Maak snel een afspraak met onze makelaar.
Deze informatie is door ons met de nodige zorgvuldigheid samengesteld. Onzerzijds wordt echter geen enkele aansprakelijkheid aanvaard voor enige onvolledigheid, onjuistheid of anderszins, dan wel de gevolgen daarvan. Alle opgegeven maten en oppervlakten zijn indicatief. Koper heeft zijn eigen onderzoeksplicht naar alle zaken die voor hem of haar van belang zijn. Met betrekking tot deze woning is de makelaar adviseur van verkoper. Wij adviseren je een deskundige (Vastgoed Ned.)-makelaar in te schakelen die je begeleidt bij het aankoopproces. Indien je specifieke wensen hebt omtrent de woning, adviseren wij je deze tijdig kenbaar te maken aan jouw aankopend makelaar en hiernaar zelfstandig onderzoek te (laten) doen. Indien je geen deskundige vertegenwoordiger inschakelt, acht je jezelf volgens de wet deskundige genoeg om alle zaken die van belang zijn te kunnen overzien. Van toepassing zijn de Vastgoed Ned.-voorwaarden.