Beschrijving

Griseldestraat 36-1 - onlangs gerenoveerd appartement met twee slaapkamers en een slimme indeling in de populaire Erasmusparkbuurt in Amsterdam-West. 

Wist je dat je ook zelf een bezichtiging kunt plannen? Klik op de oranje button en ontvang direct een link om een afspraak in te plannen.

Dit appartement van 57m2 ligt op de eerste verdieping met een mooi balkon op het oosten. Het appartement beschikt over twee slaapkamers, een ruime, lichte woonkamer met open keuken, een badkamer en een apart toilet, allemaal volledig gerenoveerd in 2022.
 
Een ideale kans voor wie op zoek is naar comfortabel en stijlvol wonen in een levendige buurt met alle voorzieningen binnen handbereik.
 
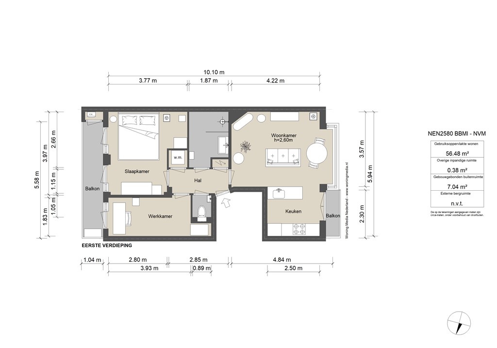
Indeling:
Het gemeenschappelijke trappenhuis leidt naar de eerste verdieping. Bij binnenkomst in het appartement komt u in de hal die toegang biedt tot alle vertrekken.
Aan de voorzijde vindt u de grote, lichte woonkamer met een open keuken. Deze moderne keuken is uitgerust met een oven/magnetron-combinatie, een koelkast/vriezer-combinatie, een vaatwasser en een inductiekookplaat en heeft toegang tot een klein balkon op het westen. Aan de achterzijde bevinden zich de twee slaapkamers met beide toegang tot het balkon, dat zich over de gehele breedte van het appartement uitstrekt.  Via de hal komt je in de moderne badkamer met inloopdouche en handdoekradiator en een apart toilet. 

Omgeving:
De Griseldestraat ligt in een rustige straat in de geliefde wijk Erasmuspark in Amsterdam-West. De aangename woonomgeving wordt gevormd door de karakteristieke architectuur uit de jaren 30 van de vorige eeuw, die levendigheid en rust in balans brengt. Alle voorzieningen liggen op loopafstand. Voor ontspanning en recreatie ligt het Erasmuspark om de hoek, voor dagelijkse boodschappen kunt u terecht op het Bos- en Lommerplein. In de Jan Evertsenstraat is een breed scala aan diverse speciaalzaken, supermarkten, cafés en restaurants te vinden. 
De Baarsjes en de Jordaan zijn binnen enkele minuten per fiets bereikbaar.
De locatie is uitstekend bereikbaar: 
Tram- en bushaltes bevinden zich vlakbij. Tram 15 brengt u in een mum van tijd naar Station Sloterdijk en bus 21 rijdt naar Amsterdam Centraal. Tram 7 verbindt u met het Amsterdamse metronetwerk.
 
Reizen met de auto is ook eenvoudig, aangezien de oprit naar de ringweg A10 om de hoek ligt. 

Parkeren:
Parkeren wordt geregeld via de parkeervergunningregeling van de gemeente Amsterdam. Met een parkeervergunning voor West-3.1 mag u zowel in West-3.1 als in West-3.3 en de Adolf van Nassaustraat parkeren. De kosten van een parkeervergunning bedragen € 199,93 per 6 maanden. Er is momenteel geen wachtlijst voor parkeervergunningen in West-3.1.

Eigendomsinformatie:
Het appartement staat op gemeentelijke erfpacht. De jaarlijkse canon bedraagt €646,90 met jaarlijkse indexatie. Het huidig tijdvak loopt tot 15-07-2064. Het eeuwigdurend tijdvak is reeds vastgezet voor een canon van €489,22 plus jaarlijkse indexering. 
Er is een optie tot afkoop van het huidige en eeuwigdurende tijdvak. Berekening van de gemeentelijke website is beschikbaar.

Vereniging van Eigenaren (VvE):
De VvE wordt beheerd door de eigenaren zelf en bestaat uit 5 leden. Het aandeel van het appartement is 10/48 en de maandelijkse servicekosten bedragen EUR 100,-. Er zijn voldoende reserves, evenals een opstalverzekering en notulen van de vergaderingen.

Kenmerken:
● Grote renovatie voltooid in 2022 (nieuwe elektriciteit, nieuwe badkamer, nieuw toilet, nieuwe keuken, nieuwe vloer)
● Ruim balkon op het oosten
● Energielabel D
● Erfpacht
● Overdracht in onderling overleg, kan snel worden
● Notaris naar keuze van de koper (binnen Amsterdam)

Deze informatie is door ons met de nodige zorgvuldigheid samengesteld. Onzerzijds wordt echter geen enkele aansprakelijkheid aanvaard voor enige onvolledigheid, onjuistheid of anderszins, dan wel de gevolgen daarvan. Alle opgegeven maten en oppervlakten zijn indicatief. Koper heeft zijn eigen onderzoeksplicht naar alle zaken die voor hem of haar van belang zijn. Met betrekking tot deze woning is de makelaar adviseur van verkoper. Wij adviseren je een deskundige (Vastgoed-Ned.)makelaar in te schakelen die je begeleidt bij het aankoopproces. Indien je specifieke wensen hebt omtrent de woning, adviseren wij je deze tijdig kenbaar te maken aan jouw aankopend makelaar en hiernaar zelfstandig onderzoek te (laten) doen. Indien je geen deskundige vertegenwoordiger inschakelt, acht je jezelf volgens de wet deskundige genoeg om alle zaken die van belang zijn te kunnen overzien. Van toepassing zijn de Vastgoed-Ned. voorwaarden.

Kenmerken